Project Story
Client a global trading company with branches worldwide, entrusted BEYOND DECOR with the complete design and build of their new corporate headquarters at AIA Capital Center, Ratchada.
The ambition was to create a timeless, functional, and inspiring workplace that reflects the company’s international identity while providing a comfortable, efficient, and collaborative environment for its staff.
Concept & Design Philosophy
| JAPANDI | TIMELESS | MONOTONE |
The design embraces a monotone corporate philosophy: a neutral palette of greys, whites, warm oak, and subtle stone finishes. This approach creates:
- A timeless corporate look that remains relevant for years
- Visual consistency across all areas
- A balance between formality and warmth
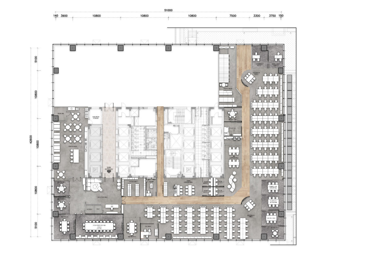
Public vs. Private Areas
The office is carefully zoned to separate visitor-friendly spaces from confidential staff areas:
- Public/Common Areas: Lobby, waiting area, canteen, driver’s room, large conference room, and meeting rooms 1–3.
- Private Areas: The main open workspace for 120+ staff, strictly reserved for employees, ensuring confidentiality and focus.

Design Highlights
Lobby & Waiting Area
- Textured Walls: Finished in special plaster; under LED lighting, the texture comes alive, creating a cozy yet refined atmosphere.
- Loft Ceilings: 3.9m high, spray-coated off-white. Exposed but neatly arranged engineering systems are celebrated as a design feature, turning function into art.
- Custom Furniture: Designed by Tranquil, blending grey and maroon tones in line with the client’s brand identity.
- Curved Wooden Walls: Laminated with grooved panels for warmth and texture, incorporating hidden storage and even a golf-bag zone.
- Lighting: Elegant chandeliers in aluminum and Euro-grey smoky glass lend a luxurious touch.
Common Areas & Canteen
- 14m Pantry: A spacious canteen designed to host staff lunches, birthday celebrations, and company gatherings.
- Wooden Slats: Vertical decorative slats provide semi-privacy while keeping spaces visually open — a recurring detail throughout the office.
- Atmosphere: A café-inspired aesthetic encourages relaxation and informal collaboration.
Conference & Meeting Rooms
- Large Meeting Room: A 20-seat main conference table plus 14 additional bench seats for major discussions.
- Feature Walls:
- Grooved wood panels with Japanese inspiration
- Pearl-shine laminated wall with aluminum detailing
- Expansive white glass wall for brightness
- Floor-to-ceiling panoramic windows overlooking Ratchada
- Custom Gradient Film: A red-to-white frosted gradient film, developed exclusively for this project, applied to glass partitions for privacy and brand expression.
- Tech Integration: Custom touch-screen stands outside each meeting room allow real-time booking and scheduling.
Archive Room
- A dedicated archive with metal racks, shelves, cabinets, and a monumental 8m-long mobile storage systemoperated by a steering wheel.
Server Room – The Hidden Engine
- The most technically complex space, coordinated across multiple vendors.
- Features a 24/7 dual-chiller AC system running on an analog timer for redundancy.
- Engineered to meet strict standards for safety, ventilation, and reliability.
Smart Engineering & Detailing
- Hidden Wiring: 14 custom steel partitions conceal LAN and TEL cabling, distributing connections invisibly to every workstation.
- Floor Routing: Reception counters, pantry bars, and built-ins conceal wiring beneath the concrete floor, requiring precision before finishing works.
- Wire-Free Result: The outcome is a clean, organized environment for over 120 staff, perfectly aligned with the office’s minimal design.
- World Map Feature: A statement wall in the waiting area symbolizes Client’s global presence.
Building Management Challenges
Delivering this project inside AIA Capital Center required strict compliance with building regulations enforced by the JLL management team. These included:
- Restricted working hours
- Multi-step approvals for drawings and shop drawings
- Heavy insurance and deposits
- Strict site rules such as daily worker ID registration
- Penalties for any violations
Despite the complexity, BEYOND DECOR navigated every obstacle and handed over the project on schedule.
From Render to Reality
One of the project’s greatest achievements: the final office matched the 3D renderings 100%.
This precise execution demonstrates the dedication of the BEYOND team at every stage — from layout and design development to construction and production.
“From concept to reality — delivered exactly as envisioned.”
Outcome
New. Headquarters dis a monotone, modern, and globally inspired office that merges corporate identity with human-centered design.
- For the client: a prestigious head office in a landmark Bangkok tower.
- For the staff: a workplace that inspires collaboration, productivity, and pride.
- For BEYOND DECOR: a signature project — proof of our ability to handle technical complexity and deliver perfection down to the last detail.